RESOLUÇÃO
N.º 736, DE 22 DE DEZEMBRO DE 2021
AUTORIZA
A PERMISSÃO DE USO DE BENS LOCALIZADOS NO ANEXO IV, DA ASSEMBLEIA LEGISLATIVA
DO ESTADO DO CEARÁ, PARA A DEFENSORIA PÚBLICA DO ESTADO DO CEARÁ.
A MESA DIRETORA DA ASSEMBLEIA LEGISLATIVA DO ESTADO DO CEARÁ, no uso das
atribuições que lhe confere o art. 19, inciso I, da Resolução nº 389, de 11 de
dezembro de 1996 (Regimento Interno), promulga a seguinte Resolução:
Art.
1.º
Fica o Presidente da Assembleia Legislativa do Estado do Ceará autorizado a permitir
o uso, a título gratuito, dos bens descritos nos Anexos I a III desta Resolução,
do terceiro pavimento do Anexo IV, da Assembleia Legislativa do Estado do
Ceará, localizado na Av. Desembargador Moreira, 2930 - Dionísio Torres,
Fortaleza - CE, CEP: 60170-002, com uma área útil total de 111,81m² e uma área
total construída de 139,25m², com seus respectivos acessórios e equipamentos,
para a Defensoria Pública do Estado do Ceará.
Art.
2.º A
permissão deverá ser formalizada por instrumento de permissão de uso, mediante
cláusulas e condições ali estabelecidas.
Art.
3.º Os
bens cujo uso será permitido deverão ser utilizados de modo gratuito e
exclusivamente para fins de instalação e funcionamento do Núcleo da Defensoria
Pública, para permitir a realização de serviços em espaço físico da Assembleia
Legislativa, relacionados à proteção dos direitos do consumidor, direitos
humanos e ações coletivas, de medidas relacionadas ao enfrentamento à violência
contra a mulher, entre outras.
Art.
4.º Esta
Resolução entra em vigor na data de sua publicação.
PAÇO DA
ASSEMBLEIA LEGISLATIVA DO ESTADO DO CEARÁ, em Fortaleza, 22 de dezembro de 2021.
|
_____________________________ _____________________________ _____________________________ _____________________________ _____________________________ _____________________________ _____________________________ |
DEP.
EVANDRO LEITÃO PRESIDENTE DEP.
FERNANDO SANTANA 1.º
VICE-PRESIDENTE DEP.
DANNIEL OLIVEIRA 2.º
VICE-PRESIDENTE DEP.
ANTÔNIO GRANJA 1.º
SECRETÁRIO DEP.
AUDIC MOTA 2.º
SECRETÁRIO DEP.
ÉRIKA AMORIM 3.ª
SECRETÁRIA DEP. AP. LUIZ HENRIQUE 4.º
SECRETÁRIO |
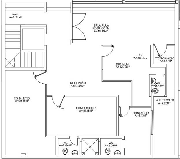
ANEXO I
PLANTA DE ARQUITETURA - 3°
PAVIMENTO – ANEXO IV – ASSEMBLEIA LEGISLATIVA

Fig. 01
DESCRIÇÃO:
O espaço compõe-se de 7 (sete) ambientes,
perfazendo uma área útil total de 111,81m² e uma área total construída de
139,25m² (excluindo a laje das condensadoras, caixa de escadas e elevador).
Conferir fig. 01.
As áreas de cada ambiente estão
descritas na Tabela 01 e podem ser conferidas na fig. 01.
|
AMBIENTE |
ÁREA
ÚTIL (m²) |
|
Hall
de entrada |
3,21 |
|
Recepção |
23,46 |
|
Sala
de Aula – Roda de Convivência |
19,19 |
|
Direitos
Humanos |
12,73 |
|
Banheiro
Sala de Direitos Humanos |
1,43 |
|
Circulação
Laje Condensadoras |
3,77 |
|
Contador |
8,13 |
|
Banheiro
Sala do Contador |
2,04 |
|
Consumidor |
15,45 |
|
Banheiro
Sala do Consumidor |
2,04 |
|
Equipe
Multidisciplinar |
20,36 |
|
TOTAL |
111,81 |
Tabela
01
Salas
com paredes acabadas com pintura acrílica cor branca, forro falso de gesso
cartonado prensado, modulado em placas de 62,5cm x 62,5cm, fixados com perfis
de alumínio. Luminárias tamanho 62,5cm x 62,5cm distribuídas na modulação do
forro. Piso em Paviflex. Amplas esquadrias na Sala de Aula – Roda de
Convivência, permitindo uma visão generosa do exterior. Nas salas do contador,
existe esquadria de correr em alumínio e vidro. Banheiros dotados de vão para
exaustão natural, com forro em gesso cartonado liso, piso em granito preto,
paredes em cerâmica branca 10x10 e bancadas em granito cinza andorinha com cuba
de embutir.
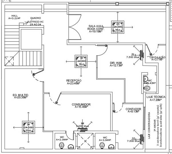
ANEXO II
DESCRIÇÃO DOS EQUIPAMENTOS DE
AR-CONDICIONADO

Planta
Baixa da locação dos equipamentos de Ar-Condicionado
|
AMBIENTE |
EQUIPAMENTO |
|
Circulações
e Recepção |
Cassete
24.000 BTUs |
|
Sala
de Aula – Roda de Convivência |
Cassete
24.000 BTUs |
|
Direitos
Humanos |
Split
7.500 BTUs |
|
Contador |
Split
7.500 BTUs |
|
Consumidor |
Split
9.000 BTUs |
|
Equipe
Multidisciplinar |
Split
9.000 BTUs |
Tabela
02
Os
equipamentos de ar condicionado encontram-se distribuídos de acordo com a
planta acima. Suas condensadoras estão instaladas em uma laje técnica
localizada na face Sul.
ANEXO III
IMAGENS DO
LOCAL


