RESOLUÇÃO
N.º 735, DE 22 DE DEZEMBRO DE 2021
AUTORIZA
A PERMISSÃO DE USO DE BENS LOCALIZADOS NO ANEXO IV, DA ASSEMBLEIA LEGISLATIVA
DO ESTADO DO CEARÁ, PARA O MINISTÉRIO PÚBLICO DO ESTADO DO CEARÁ.
A
MESA DIRETORA DA ASSEMBLEIA LEGISLATIVA DO ESTADO DO CEARÁ, no
uso das atribuições que lhe confere o art. 19, inciso I, da Resolução nº 389,
de 11 de dezembro de 1996 (Regimento Interno), promulga a seguinte Resolução:
Art. 1.º Fica o Presidente da Assembleia
Legislativa do Estado do Ceará autorizado a permitir o uso, a título gratuito,
dos bens descritos nos Anexos I a III desta Resolução, do segundo pavimento do
Anexo IV, da Assembleia Legislativa do Estado do Ceará, localizado na Av.
Desembargador Moreira, 2930 - Dionísio Torres, Fortaleza - CE, CEP:60170-002,
com uma área útil total de 123,00m² e uma área total construída de 148,03m²,
com seus respectivos acessórios e equipamentos, para o Ministério Público do
Estado do Ceará.
Art.
2.º A
permissão deverá ser formalizada por instrumento de permissão de uso, mediante
cláusulas e condições ali estabelecidas.
Art.
3.º Os
bens cujo uso será permitido deverão ser utilizados de modo gratuito e
exclusivamente para fins de instalação e funcionamento do Núcleo de Atendimento
às Vítimas de Violência – NUAVV do Ministério Público do Estado do Ceará.
Art.
4º Esta
Resolução entra em vigor na data de sua publicação.
PAÇO DA
ASSEMBLEIA LEGISLATIVA DO ESTADO DO CEARÁ, em Fortaleza, 22 de dezembro de 2021.
|
_____________________________ _____________________________ _____________________________ _____________________________ _____________________________ _____________________________ _____________________________ |
DEP.
EVANDRO LEITÃO PRESIDENTE DEP.
FERNANDO SANTANA 1.º
VICE-PRESIDENTE DEP.
DANNIEL OLIVEIRA 2.º
VICE-PRESIDENTE DEP.
ANTÔNIO GRANJA 1.º
SECRETÁRIO DEP.
AUDIC MOTA 2.º
SECRETÁRIO DEP.
ÉRIKA AMORIM 3.ª
SECRETÁRIA DEP. AP. LUIZ HENRIQUE 4.º
SECRETÁRIO |
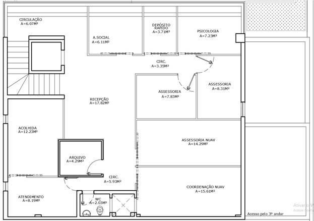
ANEXO I
PLANTA DE ARQUITETURA - 2°
PAVIMENTO – ANEXO IV – ASSEMBLEIA LEGISLATIVA

Fig. 01
DESCRIÇÃO:
O espaço compõe-se de 11 ambientes,
perfazendo uma área útil total de 123,00m² e uma área total construída de
148,03m² (excluindo a laje das condensadoras, a caixa de escadas e elevador).
Conferir fig. 01.
As áreas de cada ambiente estão
descritas na Tabela 01 e podem ser conferidas na fig. 01.
|
AMBIENTE |
ÁREA
ÚTIL (m²) |
|
Circulação
de entrada |
6,07 |
|
Recepção |
17,82 |
|
Circulação
Assessorias |
3,35 |
|
Assistência
Social |
6,11 |
|
Depósito
Rápido |
3,71 |
|
Psicologia |
7,23 |
|
Assessoria |
8,31 |
|
Assessoria |
7,83 |
|
Circulação
Arquivo |
5,93 |
|
Assessoria
NUAV |
14,29 |
|
Coordenação
NUAV |
15,61 |
|
Arquivo |
4,29 |
|
Atendimento |
8,19 |
|
Acolhida |
12,23 |
|
Banheiro |
2,03 |
|
TOTAL |
123,00 |
Tabela
01
Salas
com paredes acabadas com pintura acrílica cor branca, forro falso de gesso
cartonado prensado, modulado em placas de 62,5cm x 62,5cm, fixados com perfis
de alumínio. Luminárias tamanho 62,5cm x 62,5cm distribuídas na modulação do
forro. Piso em Paviflex. Amplas esquadrias na circulação de entrada, e nas
salas de Assistência Social, Depósito Rápido e Psicologia. Nas salas da
Assessoria, Atendimento e Acolhida, existem esquadrias fixas de alumínio e
vidro. Banheiro dotado de vão para exaustão natural, com forro em gesso
cartonado liso, piso em granito preto, paredes em cerâmica branca 10x10 e
bancadas em granito cinza andorinha com cuba de embutir.
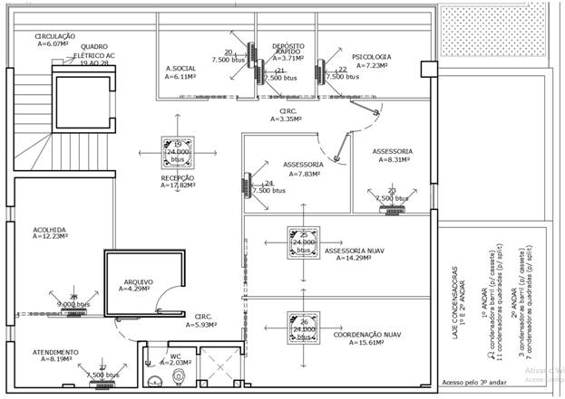
ANEXO II
DESCRIÇÃO DOS EQUIPAMENTOS DE
AR CONDICIONADO

Planta
Baixa da locação dos equipamentos de Ar Condicionado
|
AMBIENTE |
EQUIPAMENTO |
|
Circulações
e Recepção |
Cassete
24.000 BTUs |
|
Assistência
Social |
Split
7.500 BTUs |
|
Depósito
Rápido |
Split
7.500 BTUs |
|
Psicologia |
Split
7.500 BTUs |
|
Assessoria |
Split
7.500 BTUs |
|
Assessoria |
Split
7.500 BTUs |
|
Assessoria
NUAV |
Cassete
24.000 BTUs |
|
Coordenação
NUAV |
Cassete
24.000 BTUs |
|
Atendimento |
Split
7.500 BTUs |
|
Acolhida |
Split
9.000 BTUs |
Tabela
02
Os
equipamentos de ar condicionado encontram-se distribuídos de acordo com a
planta acima. Suas condensadoras estão instaladas em uma laje técnica
localizada na face Sul.
ANEXO III
IMAGENS DO
LOCAL





