RESOLUÇÃO
N.º 712, DE 10 DE DEZEMBRO DE 2020
AUTORIZA A
PERMISSÃO DE USO DE BENS LOCALIZADOS NO ANEXO II, DA ASSEMBLEIA LEGISLATIVA DO
ESTADO DO CEARÁ, PARA O TRIBUNAL DE JUSTIÇA DO ESTADO DO CEARÁ.
A
MESA DIRETORA DA ASSEMBLEIA LEGISLATIVA DO ESTADO DO CEARÁ, no uso das
atribuições que lhe confere o art. 19, inciso I, da Resolução n.º 389, de 11 de
dezembro de 1996 (Regimento Interno), promulga a seguinte Resolução:
Art.
1.º Fica
o Presidente da Assembleia Legislativa do Estado do Ceará autorizado a permitir
o uso, a título gratuito, dos bens descritos nos Anexos I a XIII desta
Resolução, correspondentes a uma área de 380,26m² (trezentos e oitenta vírgula
vinte e seis metros quadrados), do Anexo II, da Assembleia Legislativa do
Estado do Ceará, com seus respectivos acessórios e equipamentos, para o
Tribunal de Justiça do Estado do Ceará.
Art.
2.º A
permissão deverá ser formalizada por instrumento de permissão de uso, mediante
cláusulas e condições ali estabelecidas.
Art.
3.º Os
bens cujo uso será permitido deverão ser utilizados de modo gratuito e
exclusivamente para fins de instalação e funcionamento de Juizado Especial, para conciliação, processo, julgamento e execução,
nas causas de sua competência.
Art.
4.º Esta
Resolução entra em vigor na data de sua publicação.
PAÇO DA ASSEMBLEIA
LEGISLATIVA DO ESTADO DO CEARÁ, em Fortaleza, aos 10 de dezembro de 2020.
|
|
DEP.
JOSÉ SARTO PRESIDENTE DEP.
FERNANDO SANTANA 1.º
VICE-PRESIDENTE DEP.
DANNIEL OLIVEIRA 2.º
VICE-PRESIDENTE DEP.
EVANDRO LEITÃO 1.º
SECRETÁRIO DEP.
ADERLÂNIA NORONHA 2.ª
SECRETÁRIA DEP.
PATRÍCIA AGUIAR 3.ª
SECRETÁRIA DEP. LEONARDO PINHEIRO 4.º
SECRETÁRIO |
ANEXO I
PLANTA
DE LOCALIZAÇÃO DAS SALAS DISPONÍVEIS NO PAVIMENTO TÉRREO DO
EDIFÍCIO DEPUTADO JOSÉ EUCLIDES FERREIRA GOMES

Fig.
01
DESCRIÇÃO:
O
espaço compõe-se de 17 ambientes, perfazendo uma área total construída de
380,26m². Conferir fig. 01.
As
áreas de cada ambiente estão descritas na Tabela 01 e podem ser conferidas na
fig. 02.
|
AMBIENTE |
ÁREA
ÚTIL (m²) |
|
Sala
01 |
52,50 |
|
Sala
02 |
68,27 |
|
Sala
03 |
18,97 |
|
Sala
04 |
15,28 |
|
Sala
05 |
16,12 |
|
Sala
06 |
11,29 |
|
Sala
07 |
11,29 |
|
Sala
08 |
17,10 |
|
Sala
09 |
11,29 |
|
Sala
10 |
11,29 |
|
Sala
11 |
11,05 |
|
Sala
12 |
11,29 |
|
Sala
13 |
15,80 |
|
Sala
14 |
11,205 |
|
Sala
15 |
19,02 |
|
Sala
16 (Copa) |
7,40 |
|
Lavabo |
2,93 |
Tabela
01

Fig.
02
Salas
com paredes acabadas com pintura acrílica, forro falso de gesso cartonado
prensado, modulado em placas de 62,5cm x 62,5cm, fixados com perfis de
alumínio. Luminárias tamanho 62,5cm x 62,5cm distribuídas na modulação do
forro. Amplas esquadrias nas salas 01, 02, 03, 15 e 16, permitindo uma visão
generosa do exterior. Piso em Cerâmica Elizabeth, Linha Cristal PEI IV Cor Bege
45x45cm. Equipamentos de ar condicionado descritos no Anexo XIII.
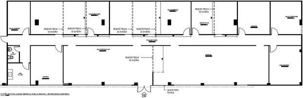
ANEXO II
DESCRIÇÃO DO USO PROJETADO PARA O
JECC

Fig.
03
A nova denominação dos ambientes segue descrita na
tabela 02 abaixo:
|
AMBIENTE
ORIGINAL |
NOVA
DENOMINAÇÃO |
ÁREA
ÚTIL (m²) |
|
Sala
01 |
SALA
DE ESPERA DO JECC |
52,50 |
|
Sala
02 |
SECRETARIA |
68,27 |
|
Sala
03 |
ARQUIVO
/ DEPÓSITO |
18,97 |
|
Sala
04 |
SALA
DO(A) SUPERVISOR(A) |
15,28 |
|
Sala
05 |
ASSESSORIA |
16,12 |
|
Sala
06 |
GABINETE
DO JUIZ |
22,86 |
|
Sala
07 |
||
|
Sala
08 |
SALA
DE AUDIÊNCIAS |
40,52 |
|
Sala
09 |
||
|
Sala
10 |
||
|
Sala
11 |
SALA
DE CONCILIAÇÃO |
39,26 |
|
Sala
12 |
||
|
Sala
13 |
||
|
Sala
14 |
SALA
DE ATERMAÇÃO |
11,205 |
|
Sala
15 |
REFEITÓRIO |
19,02 |
|
Sala
16 (Copa) |
COPA |
7,40 |
|
Lavabo |
LAVABO |
2,93 |
Tabela
02
ANEXO
III
DESCRIÇÃO DOS MÓVEIS DA SALA DE
ESPERA DO JECC – ÁREA = 52,50m²

|
QUANTITATIVO
DE MOBILIÁRIO |
|
|
ANEXO II
- TÉRREO - JECC - SALA DE ESPERA JECC |
|
|
DESCRIÇÃO |
QUANT. |
|
CADEIRA
TIPO SECRETÁRIA ESPALDAR MÉDIO COM BRAÇOS REGULÁVEIS E RODÍZIOS |
2 |
|
CADEIRA
FIXA ESPLADAR MÉDIO SEM BRAÇO |
20 |
|
MESA
RETA - TAM. 1600 x 600 x 740 |
2 |
|
GAVETEIRO
VOLANTE COM 04 GAVETAS
TAM. 394 x 446 x 647 |
2 |
ANEXO IV
DESCRIÇÃO DOS MÓVEIS DA SALA DA
SECRETARIA – ÁREA = 68,57m²

|
QUANTITATIVO
DE MOBILIÁRIO |
|
|
ANEXO II
- TÉRREO - JECC - SECRETARIA |
|
|
DESCRIÇÃO |
QUANT. |
|
CADEIRA
TIPO SECRETÁRIA ESPALDAR MÉDIO COM BRAÇOS REGULÁVEIS E RODÍZIOS |
8 |
|
MESA DE
TRABALHO DELTA
TAM. 1400 x 600 x 1400 x 600 x 740 |
8 |
|
ARMÁRIO
BAIXO COM 02 PORTAS - TAM. 800 x 500 x 740 |
2 |
|
ARMÁRIO
BAIXO COM 04 PORTAS - TAM. 1600 x 500 x 740 |
1 |
|
GAVETEIRO
VOLANTE COM 04 GAVETAS
TAM. 394 x 446 x 647 |
8 |
ANEXO V
DESCRIÇÃO DOS MÓVEIS DO ARQUIVO /
DEPÓSITO – ÁREA = 19,03m²

|
QUANTITATIVO
DE MOBILIÁRIO |
|
|
ANEXO II
- TÉRREO - JECC - ARQUIVO/DEPÓSITO |
|
|
DESCRIÇÃO |
QUANT. |
|
ARMÁRIO
SUPER ALTO COM 02 PORTAS TAM. 2100
x 500 x 800 |
8 |
ANEXO VI
DESCRIÇÃO DOS MÓVEIS DA SALA DO(A)
SUPERVISOR(A) – ÁREA = 15,43m²

|
QUANTITATIVO
DE MOBILIÁRIO |
|
|
ANEXO II
- TÉRREO - JECC - SALA DO(A) SUPERVISOR(A) |
|
|
DESCRIÇÃO |
QUANT. |
|
ARMÁRIO
SUPER ALTO COM 02 PORTAS TAM. 2100
x 500 x 800 |
1 |
|
CADEIRA
TIPO SECRETÁRIA ESPALDAR MÉDIO COM BRAÇOS REGULÁVEIS E RODÍZIOS |
1 |
|
CADEIRA
FIXA ESPLADAR MÉDIO SEM BRAÇO |
2 |
|
MESA
RETA - TAM. 1400 x 600 x 740 |
1 |
|
MESA
RETA - TAM. 1600 x 600 x 740 |
1 |
|
GAVETEIRO
VOLANTE COM 04 GAVETAS
TAM. 394 x 446 x 647 |
1 |
ANEXO VII
DESCRIÇÃO DOS MÓVEIS DA ASSESSORIA
– ÁREA = 16,12m²

|
QUANTITATIVO
DE MOBILIÁRIO |
|
|
ANEXO II
- TÉRREO - JECC - ASSESSORIA |
|
|
DESCRIÇÃO |
QUANT. |
|
ARMÁRIO
SUPER ALTO COM 02 PORTAS TAM. 2100
x 500 x 800 |
1 |
|
CADEIRA
TIPO SECRETÁRIA ESPALDAR MÉDIO COM BRAÇOS REGULÁVEIS E RODÍZIOS |
1 |
|
CADEIRA
FIXA ESPLADAR MÉDIO SEM BRAÇO |
2 |
|
MESA
RETA - TAM. 1400 x 600 x 740 |
1 |
|
MESA
RETA - TAM. 1600 x 600 x 740 |
1 |
|
GAVETEIRO
VOLANTE COM 04 GAVETAS
TAM. 394 x 446 x 647 |
1 |
ANEXO VIII
DESCRIÇÃO DOS MÓVEIS - GABINETE DO JUIZ – ÁREA = 22,86m²

|
QUANTITATIVO
DE MOBILIÁRIO |
|
|
ANEXO II
- TÉRREO - JECC - GABINETE DO JUIZ |
|
|
DESCRIÇÃO |
QUANT. |
|
ARMÁRIO
SUPER ALTO COM 02 PORTAS TAM. 2100
x 500 x 800 |
1 |
|
CADEIRA
TIPO DIRETOR - ESPALDAR ALTO COM BRAÇOS REGULÁVEIS E RODÍZIOS |
1 |
|
SOFÁ DE
02 LUGARES |
1 |
|
CADEIRA
FIXA ESPLADAR MÉDIO SEM BRAÇO |
2 |
|
MESA DE
CANTO / CENTRO - TAM. 800 x 600 x 450 |
1 |
|
MESA
RETA - TAM. 1400 x 600 x 740 |
1 |
|
MESA
RETA - TAM. 2000 x 600 x 740 |
1 |
|
GAVETEIRO
VOLANTE COM 04 GAVETAS
TAM. 394 x 446 x 647 |
1 |
ANEXO IX
DESCRIÇÃO DOS MÓVEIS SALA DE
AUDIÊNCIAS – ÁREA = 40,52m²

|
QUANTITATIVO
DE MOBILIÁRIO |
|
|
ANEXO II
- TÉRREO - JECC - SALA DE AUDIÊNCIAS |
|
|
DESCRIÇÃO |
QUANT. |
|
CADEIRA
TIPO DIRETOR - ESPALDAR ALTO COM BRAÇOS REGULÁVEIS E RODÍZIOS |
1 |
|
CADEIRA
TIPO SECRETÁRIA ESPALDAR MÉDIO COM BRAÇOS REGULÁVEIS E RODÍZIOS |
2 |
|
CADEIRA
FIXA ESPLADAR MÉDIO SEM BRAÇO |
9 |
|
MESA
RETA - TAM. 1500 x 600 x 740 |
3 |
|
MESA
REUNIÃO RETANGULAR - TAM. 3000 x 1200 x 740 |
1 |
ANEXO X
DESCRIÇÃO DOS MÓVEIS SALA DE
CONCILIAÇÃO – ÁREA = 39,26m²

|
QUANTITATIVO
DE MOBILIÁRIO |
|
|
ANEXO II
- TÉRREO - JECC - SALA DE CONCILIAÇÃO |
|
|
DESCRIÇÃO |
QUANT. |
|
CADEIRA
TIPO DIRETOR - ESPALDAR ALTO COM BRAÇOS REGULÁVEIS E RODÍZIOS |
1 |
|
CADEIRA
TIPO SECRETÁRIA ESPALDAR MÉDIO COM BRAÇOS REGULÁVEIS E RODÍZIOS |
2 |
|
CADEIRA
FIXA ESPLADAR MÉDIO SEM BRAÇO |
9 |
|
MESA
RETA - TAM. 1500 x 600 x 740 |
3 |
|
MESA
REUNIÃO RETANGULAR - TAM. 3000 x 1200 x 740 |
1 |
ANEXO XI
DESCRIÇÃO DOS MÓVEIS SALA DE
ATERMAÇÃO – ÁREA = 11,21m²

|
QUANTITATIVO
DE MOBILIÁRIO |
|
|
ANEXO II
- TÉRREO - JECC - SALA DE ATERMAÇÃO |
|
|
DESCRIÇÃO |
QUANT. |
|
CADEIRA
TIPO SECRETÁRIA ESPALDAR MÉDIO COM BRAÇOS REGULÁVEIS E RODÍZIOS |
1 |
|
CADEIRA
FIXA ESPLADAR MÉDIO SEM BRAÇO |
2 |
|
MESA
RETA - TAM. 1400 x 600 x 740 |
1 |
ANEXO XII
DESCRIÇÃO DOS MÓVEIS REFEITÓRIO –
ÁREA = 19,08m²

|
QUANTITATIVO
DE MOBILIÁRIO |
|
|
ANEXO II
- TÉRREO - JECC - REFEITÓRIO |
|
|
DESCRIÇÃO |
QUANT. |
|
MESA
RETA - TAM. 1800 x 600 x 740 |
1 |
|
MESA
RETA - TAM. 2000 x 600 x 740 |
1 |
|
CADEIRA
FIXA ESPLADAR MÉDIO SEM BRAÇO |
4 |
ANEXO XIII
DESCRIÇÃO
DOS EQUIPAMENTOS DE AR CONDICIONADO
DAS SALAS DO TÉRREO

Planta
Baixa do Projeto de Ar Condicionado

Planta
Baixa do Projeto de Ar Condicionado Compatibilizado com as Luminárias


