RESOLUÇÃO N.º 711, DE 10 DE
DEZEMBRO DE 2020
AUTORIZA A PERMISSÃO DE USO DE BENS
LOCALIZADOS NO ANEXO III, DA ASSEMBLEIA LEGISLATIVA DO ESTADO DO CEARÁ, PARA O
GOVERNO DO ESTADO DO CEARÁ, POR MEIO DA SECRETARIA DE PROTEÇÃO SOCIAL, JUSTIÇA,
CIDADANIA, MULHERES E DIREITOS HUMANOS - SPS.
A MESA DIRETORA DA ASSEMBLEIA
LEGISLATIVA DO ESTADO DO CEARÁ, no uso das atribuições que lhe confere o art. 19,
inciso I, da Resolução n.º 389, de 11 de dezembro de 1996 (Regimento Interno),
promulga a seguinte Resolução:
Art. 1.º Fica o Presidente da Assembleia
Legislativa do Estado do Ceará autorizado a permitir o uso, a título gratuito,
dos bens descritos nos Anexos I a V desta Resolução, correspondentes a uma área
total
construída de 91,34m² e uma área útil de 90,13m² do Anexo III, da Assembleia Legislativa do Estado
do Ceará, com seus respectivos acessórios e equipamentos, para o Governo do
Estado do Ceará, por meio da Secretaria de Proteção Social, Justiça, Cidadania,
Mulheres e Direitos Humanos – SPS.
Art. 2.º A permissão deverá ser
formalizada por instrumento de permissão de uso, mediante cláusulas e condições
ali estabelecidas.
Art. 3.º Os bens cujo uso será permitido
deverão ser utilizados de modo gratuito e exclusivamente para fins de
instalação e funcionamento de uma unidade da Casa do Cidadão.
Art. 4.º Esta Resolução entra em vigor na
data de sua publicação.
PAÇO DA ASSEMBLEIA LEGISLATIVA DO ESTADO DO CEARÁ, em Fortaleza, aos 10 de
dezembro de 2020.
|
|
DEP. JOSÉ SARTO PRESIDENTE DEP. FERNANDO SANTANA 1.º VICE-PRESIDENTE DEP. DANNIEL OLIVEIRA 2.º VICE-PRESIDENTE DEP. EVANDRO LEITÃO 1.º SECRETÁRIO DEP. ADERLÂNIA NORONHA 2.ª SECRETÁRIA DEP. PATRÍCIA AGUIAR 3.ª SECRETÁRIA DEP. LEONARDO PINHEIRO 4.º SECRETÁRIO |
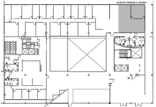
ANEXO I
PLANTA
DE LOCALIZAÇÃO DA ÁREA PARA A CASA DO CIDADÃO NO PAVIMENTO TÉRREO DO ANEXO III
- EDIFÍCIO DEPUTADO FRANCISCO DAS CHAGAS ALBUQUERQUE

Fig. 01
DESCRIÇÃO:
O espaço
compõe-se de 3 ambientes, perfazendo uma área total construída de 91,34m² e uma
área útil de 90,13m², considerando parte da "Espera Compartilhada"
com o PROCON. Conferir fig. 01.
As áreas de cada
ambiente estão descritas na Tabela 01 e podem ser conferidas na fig. 02.
|
AMBIENTE |
ÁREA ÚTIL (m²) |
|
Espera
Compartilhada |
42,25 |
|
Atendimento |
24,26 |
|
Sala de Apoio |
23,62 |
Tabela 01

Fig. 02
Salas
com paredes em gesso acartonado tipo drywall e=95mm com lã de vidro psi=40
esp=50mm acab. Em massa acrílica e pintura acrílica acetinada na cor branco
neve. Forro modular 62,5x62,5cm em fibra mineral suporte tipo tegular acabamento
em tinta vinílica na cor branca a base de latex aplicada em fábrica,
resistência ao fogo classe A. Amplas esquadrias na Espera compartilhada e na
Sala de Apoio, permitindo uma visão generosa do exterior. Piso em marmorite cor
branca, quadros paginados com junta de dilatação plástica 20x3 mm na cor
branca, acabamento polido com aplicação de hidrofugante ecêra líquida. Rodapé
em granito cinza andorina e=2cm l=10cm acabamento polido com topo polido.
ANEXO II
DESCRIÇÃO DOS MÓVEIS DA SALA DE ESPERA COMPARTILHADA – ÁREA = 42,25m²

Fig. 03
|
QUANTITATIVO DE MOBILIÁRIO |
|
|
ANEXO III - TÉRREO - CASA DO CIDADÃO ESPERA COMPARTILHADA |
|
|
DESCRIÇÃO |
QUANT. |
|
CADEIRA TIPO SECRETÁRIA ESPALDAR MÉDIO
COM BRAÇOS REGULÁVEIS E RODÍZIOS |
1 |
|
LONGARINA DE 02 LUGARES SEM BRAÇOS ,
ESPALDAR MÉDIO |
17 |
|
CADEIRA PARA OBESO SEM BRAÇOS |
2 |
|
BALCÃO PROJETADO (fig. 04) TAM. 1.850 x 3.890 x 900 x 650 x 800 |
1 |

Fig. 04
ANEXO III
DESCRIÇÃO DOS MÓVEIS DA ÁREA DE ATENDIMENTO – ÁREA =
24,26m²

Fig. 05
|
QUANTITATIVO DE MOBILIÁRIO |
|
|
ANEXO III - TÉRREO - CASA DO CIDADÃO ÁREA DE ATENDIMENTO |
|
|
DESCRIÇÃO |
QUANT. |
|
CADEIRA TIPO SECRETÁRIA ESPALDAR MÉDIO
COM BRAÇOS REGULÁVEIS E RODÍZIOS |
4 |
|
CADEIRA FIXA ESPALDAR MÉDIO, SEM BRAÇO |
17 |
|
ARMÁRIO BAIXO COM 04 PORTAS - TAM
1800 x 450 x 750 |
2 |
|
BALCÃO PROJETADO (fig. 05) - TAM. 4.870
x 850 x 1300 |
1 |

Fig. 06
ANEXA IV
DESCRIÇÃO DOS MÓVEIS DA SALA DE APOIO – ÁREA = 19,03m²

Fig. 07
|
QUANTITATIVO DE MOBILIÁRIO |
|
|
ANEXO III - TÉRREO - CASA DO CIDADÃO SALA DE APOIO |
|
|
DESCRIÇÃO |
QUANT. |
|
CADEIRA TIPO SECRETÁRIA ESPALDAR MÉDIO
COM BRAÇOS REGULÁVEIS E RODÍZIOS |
4 |
|
MESA RETA - TAM. 1500 x 500 x 740 |
4 |
|
GAVETEIRO VOLANTE COM 04 GAVETAS -
TAM. 450 x 430 x 650 |
4 |
|
ARMÁRIO ALTO COM 02 PORTAS - TAM 900
x 450 x 1600 |
2 |
ANEXO V
DESCRIÇÃO
DOS EQUIPAMENTOS DE AR CONDICIONADO

Planta Baixa do
Projeto de Ar Condicionado - Fig. 08

